Appartamento in Vendita
Appartamento in Vendita in un edificio di nuova costruzione a Giulianova Lido, progettato con particolare attenzione al comfort abitativo e all’efficienza energetica.
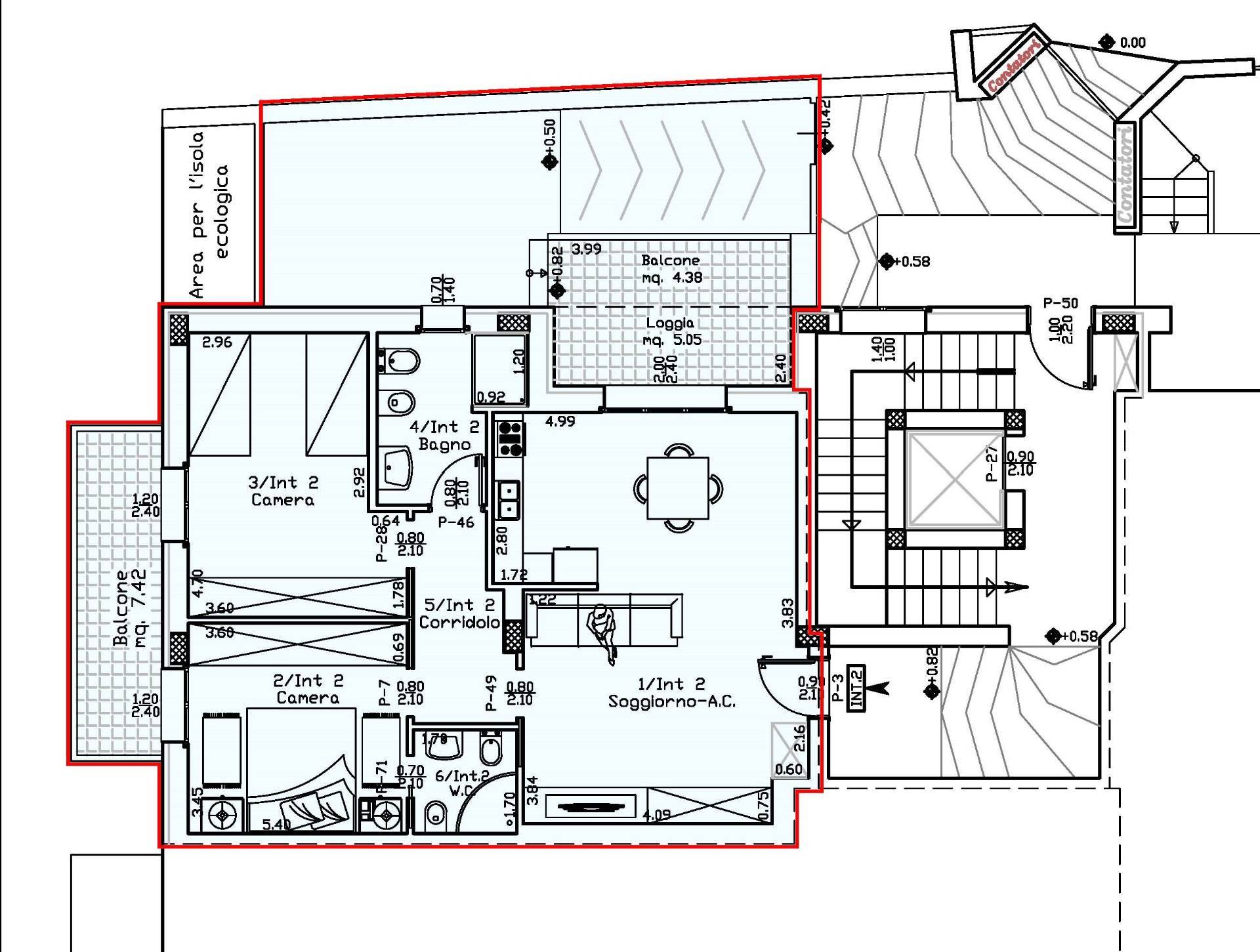
L’abitazione, posta al piano terra rialzato della struttura, si apre su un ampio soggiorno, collegato alla cucina moderna e funzionale con terrazzo e da questo si accede ad area esterna privata che può essere destinata a giardino. Nella zona notte vi è una camera matrimoniale, luminosa e spaziosa, con bagno privato e una seconda camera da letto, bagno più grande e finestrato a servizio dell'Appartamento. Oltre al terrazzo ed al giardino l'unità immobiliare ha un balcone, ulteriore affaccio esterno accessibile dalla camera matrimoniale.
L’edificio sorge in una zona verde e tranquilla di Giulianova, a breve distanza dal centro cittadino, da tutti i negozi e a pochi minuti dal lungomare, offrendo un equilibrio perfetto tra le comodità urbane e la natura. Ogni Appartamento è stato pensato per garantire flessibilità degli ambienti e possibilità di personalizzazione secondo il proprio stile di vita.
Gli interni sono realizzati con design moderno, materiali di alta qualità e finiture eleganti. L’impiantistica di ultima generazione include riscaldamento a pavimento termoautonomo con pompe di calore e pannelli fotovoltaici, assicurando ottime prestazioni di efficientamento energetico.
Possibilità di box auto acquistabile separatamente.
Classe energetica A4.
Consegna prevista per metà 2027.
Per maggiori informazioni contattare l'Agenzia.
Classe energetica






